Riffig / Anbau und Energiemassnahmen
Für einen Betrieb der Schulanlage mit zwölf Klassen fehlen dem Gebäude Gruppenräume. Diese werden zusammen mit einem Lift für die hindernisfreie Erschliessen angebaut. Parallel wird die Ölheizung durch eine Erdwärmesonden-Anlage ersetzt und Photovoltaikanlagen erstellt. Der Ersatz der Beleuchtung auf LED sowie die Erdbebenertüchtigung ergänzen das Projekt, welches die Anlage fit für die nächsten Jahre macht.
Ausgangslage
Die Schulanlage Riffig liegt nahe den Schulanlagen Erlen und Krauer sowie dem Schulhaus Sprengi, welches betrieblich zum Schulhaus Riffig gehört. Diese Anlagen decken zusammen mit der Schulanlage Hübeli den Nord-Westen der Gemeinde Emmen ab und können auf Grund der räumlichen Nähe sich gut gegenseitig ausgleichen. Durch die Erweiterung der Schulanlage Riffig von zehn auf zwölf Klassen sowie der Erweiterung der Schulanlage Hübeli, besteht gemäss Prognose für dieses Gebiet ausreichend Schulraum.
Projektbeschreibung
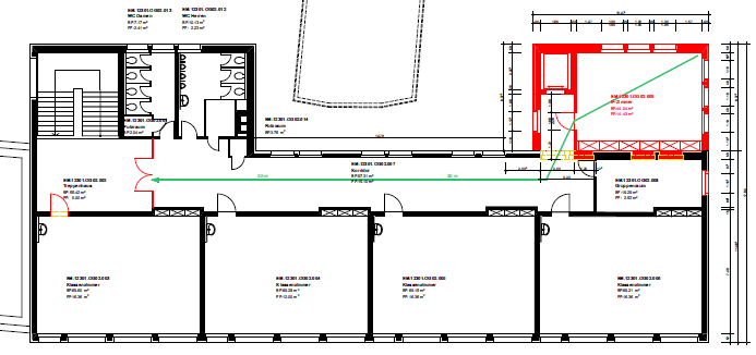
Die Schulanlage Riffig verfügt heute über zwölf Klassenräume, wovon zwei als Gruppenräume genutzt werden müssen, da solche fehlen. Somit ist aktuell nur Raum für 10 Klassen vorhanden. Zusammen mit dem Anbau eines Liftes für die hindernisfreie Erschliessung, kann pro Stock leicht ein zusätzlicher Raum erstellt werden. Der Anbau erfolgt im Bereich des Heizungsraumes, wo im gleichen Zuge eine Wärmepumpe den Ölbrenner ersetzt. Die Photovoltaikanlage auf dem Dach des Klassentraktes kann durch den Anbau optimal erschlossen werden, und ergibt Synergien bei den Dacharbeiten. Durch die Unterteilung von zwei Räumen, einer Rochade von Nutzungen sowie der Nutzung der alten Hauswartwohnung für die
Tagesstruktur bildet das Projekt den geeigneten Zeitpunkt, um auf der ganzen Anlage die Beleuchtung auf LED umzustellen und die elektronische Schliessung bei der Aussenhülle einzuführen.
Perspektive Anbau
Grundriss mit Anbau
Ausführung

Abschluss
Für den Betrieb der Schulanlage Riffig mit zwölf Klassen fehlten dem Gebäude bisher die nötigen Gruppenräume. Diese wurden zusammen mit einem Lift für die hindernisfreie Erschliessung angebaut. Parallel wurde bzw. wird die Ölheizung durch eine Erdwärmesondenanlage ersetzt und es werden Photovoltaikanlagen erstellt. Der Ersatz der Beleuchtung auf LED sowie die Erdbebenertüchtigung ergänzen das rund 3,9 Millionen Franken teure Projekt.
«Damit ist die Schulanlage Riffig für die kommenden Jahre gerüstet und bietet Raum für zwölf Schul- und fünf Kindergartenklassen mit den entsprechenden Gruppen- und Förderräumen. Auch die Tagesstruktur konnte mit dem Bezug der Hauswartwohnung vergrössert werden», freut sich Benno Gut, Bereichsleiter Schulinfrastruktur und Planung.
Projekt
Publikationen auf www.emmen.ch
-
30. September 2025
Eröffnung
Für den Betrieb der Schulanlage Riffig mit zwölf Klassen fehlten dem Gebäude bisher die nötigen Gruppenräume. Diese wurden zusammen mit einem Lift für die hindernisfreie Erschliessung angebaut. Parallel wurde bzw. wird die Ölheizung durch eine Erdwärmesondenanlage ersetzt und es werden Photovoltaikanlagen erstellt. Der Ersatz der Beleuchtung auf LED sowie die Erdbebenertüchtigung ergänzen das rund 3,9 Millionen Franken teure Projekt.

-
20. April 2024 – 25. August 2025
Ausführung
Die Ausführung der Arbeiten beim Riffigschulhaus hat begonnen. Die ehemalige Hauswartwohnung wird nun umgebaut.

-
5. Dezember 2023 – 25. April 2024
Submission
-
-
19. September 2023
Ausführungskredit
Das Projekt sieht einen Anbau an den bestehenden Klassentrakt für die fehlenden Gruppenräume vor. Das kompakte und effiziente Projekt schlägt viele Fliegen mit einer Klappe und überzeugt durch die Nutzung von Synergien. Ein Lift zur hindernisfreien Erschliessung, Brandschutzmassnahmen, die Installation einer elektronischen Schliessanlage sowie ein Bündel an energetischen Massnahmen verwandeln das Projekt in ein ganzheitliches Unterfangen. So werden die Dachflächen des Klassentraktes, des Spezialtraktes und des Dreifachkindergartens im Zuge des Anbauprojekts mit einer Photovoltaikanlage bestückt. Die gewonnene Energie wird für den Eigenbedarf verwendet, wozu auch eine Kopplung mit der Wärmeerzeugung erfolgt. Um die Abhängigkeit von Erdöl zu verringern und die Wärmeerzeugung auf erneuerbare Energien umzustellen, wird ferner die Ölheizung durch Erdwärmesonden ersetzt. Ausserdem wird die Beleuchtung in allen Trakten der Schulanlage auf LED umgerüstet, was sich ebenfalls positiv auf die Energiekosten auswirken wird.
Nach erfolgter Planung Entscheidet der Einwohnerrat nun über den Ausführungskredit.
-
5. Januar 2023 – 25. Juli 2023
Planung
-
-
5. Juli 2022 – 25. Dezember 2022
Umnutzung Schulküche
-
-
5. Januar 2022 – 25. Juni 2022
Planung
-